
Work & Life Bau-Konzept Altersgerechtes Wohnen
Projektentwicklung - Projektsteuerung - Projektmanagement durch Burbank CTM Verbund-Gruppe
WGs für betreutes Wohnen bis hin zur häuslichen Pflege
Das Projekt verfolgt das Ziel, dauerhaft bezahlbaren, sicheren und betreuten Wohnraum für Senioren und Menschen mit Unterstützungsbedarf – bis hin zur häuslichen Pflege, insbesondere mit demenziellen Erkrankungen – zu schaffen.
Die Immobilie wird nicht renditegetrieben, sondern in einer Gesellschaft organisiert. Bewohner bzw. deren Angehörige werden Mitglieder der Gesellschaft und erhalten ein langfristig gesichertes Wohnrecht.
Ein professioneller Betreiber für Betreuung und Pflege ist vorhanden bzw. angebunden.
Ausgangslage & Bedarf
Stark steigender Bedarf an betreutem Wohnen bis hin zur Pflege als WGs
- Kaum bezahlbare, stabile Angebote im ländlichen bzw. stadtnahen Raum
- Klassische Investorenmodelle führen häufig zu:
- steigenden Mieten
- Betreiberwechseln
- Unsicherheit für Bewohner & Angehörige
- Unser Projekt löst genau diese Probleme.
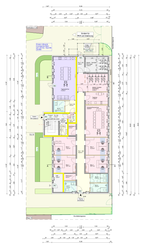
Projektbeschreibung
Standort: Stadt und Umland
Wohnform: Betreutes Wohnen / Wohngruppen
Einheiten: ca. 12 Wohneinheiten
Wohnfläche: ca. 750 m²
Gemeinschaftsflächen: Küche, Aufenthaltsräume, Pflegebad, Büro
Bauweise: barrierefrei, förderfähig, flexibel nutzbar
Betreiber: externer Pflegedienst / Betreuungsträger
Organisationsform: Genossenschaft (eG) oder GmbH & Co KG
Grundprinzip
Die Genossenschaft bzw. die Gesellschaft ist Eigentümerin der Immobilie.
Bewohner sind Mitglieder/Gesellschaften,
keine klassischen Mieter.
Leitsatz:
Wohnen auf Lebenszeit statt Wohnen auf Zeit.

Projekt Berlin-Wartenberg:
Baugenehmigung liegt vor
Bezugsfertig 2027
24 Wohneinheiten

Projekt Bördeland:
Bauvoranfrage genehmig
Fertigstellung 2028
12 Wohneinheiten
